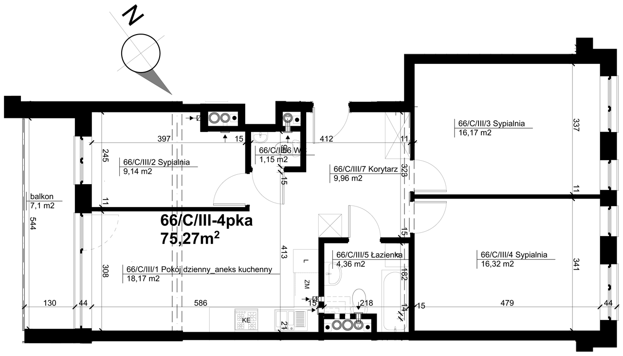
Kliknij wybrane mieszkanie, aby zobaczyć powiększenie jego planu.
Etap ... – mieszkania ...
Projekt budowlany – mogą nastąpić niewielkie korekty w metrażach na etapie projektu wykonawczego| numer mieszkania |
ilość pokoi |
ekspozycja | metraż mieszkania |
metraż balkonu/tarasu |
uwagi |
|---|




