Kliknij wybrane mieszkanie, aby zobaczyć powiększenie jego planu.
Etap ... – mieszkania ...
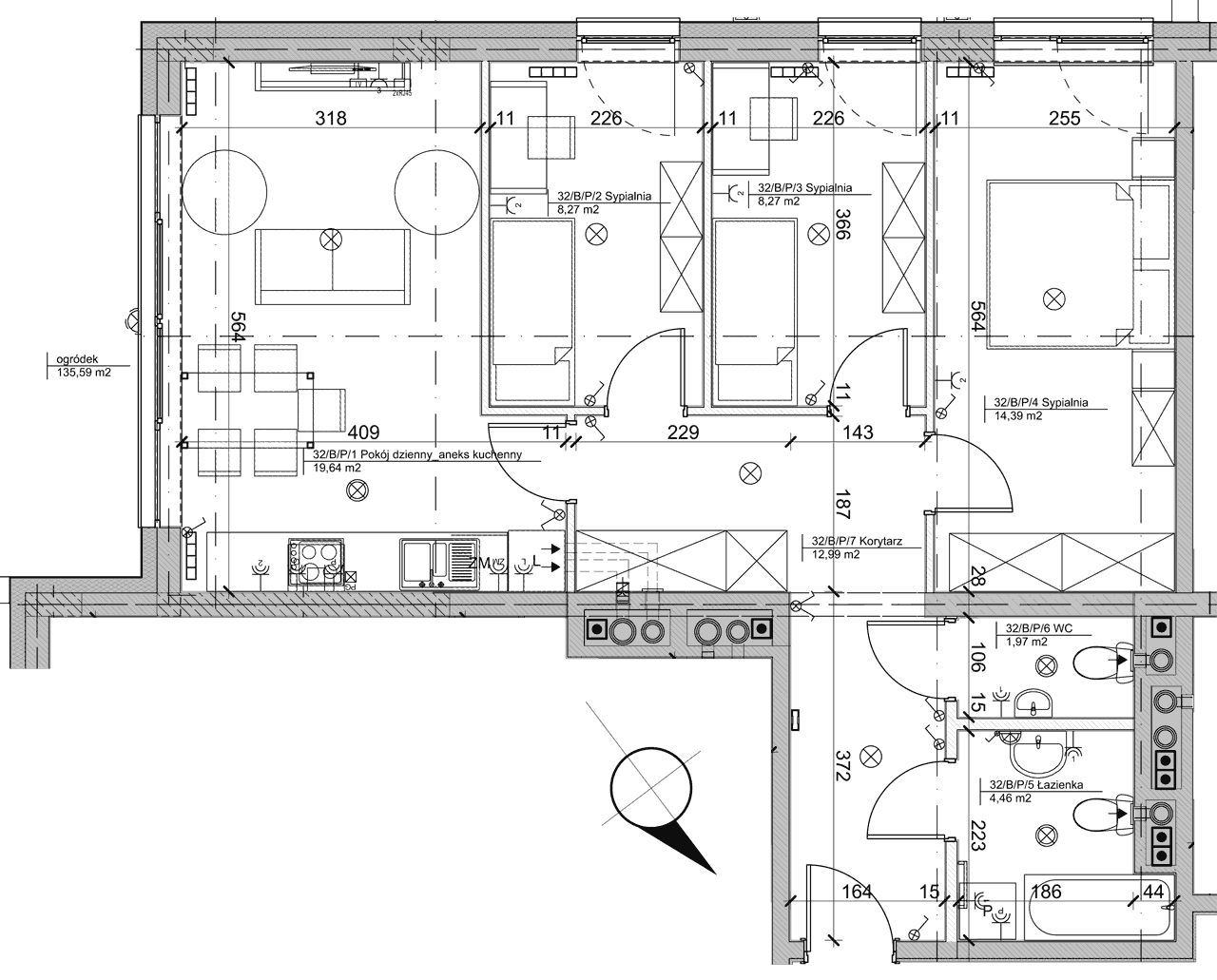
Projekt budowlany – mogą nastąpić niewielkie korekty w metrażach na etapie projektu wykonawczego| numer mieszkania |
ilość pokoi |
ekspozycja | metraż mieszkania |
metraż balkonu/tarasu |
uwagi |
|---|
Wygodne, nowoczesne mieszkania na sprzedaż z ogródkami
Wszystkie mieszkania na parterze w etapie I mają ogródki o metrażu od 30 do 140 m2, które dają dodatkowe możliwości wykorzystania przestrzeni mieszkalnej. Większe z tych mieszkań to dobre rozwiązania dla rodzin z dziećmi - najmłodsi zyskują swój własny kącik zabaw na powietrzu, a dorośli - miejsce wypoczynku i relaksu.
Mieszkania z ekspozycją na dwie strony
Uwagę zwracają mieszkania z ekspozycją na dwie, przeciwległe strony świata - M5, M30 i M34. W tych mieszkaniach salon z wyjściem do ogródka położony jest po bardziej nasłonecznionej stronie, a sypialnie mają okna na stronę chłodniejszą.
Mieszkanie czteropokojowe z dużym ogródkiem
Mieszkańcy czteropokojowego lokalu M32 będą mieli do dyspozycji duży ogódek o powierzchni około 140 m2, czyli dwukrotnie większym niż powierzchnia samego mieszkania.




