Kliknij wybrane mieszkanie, aby zobaczyć powiększenie jego planu.
Etap ... – mieszkania ...
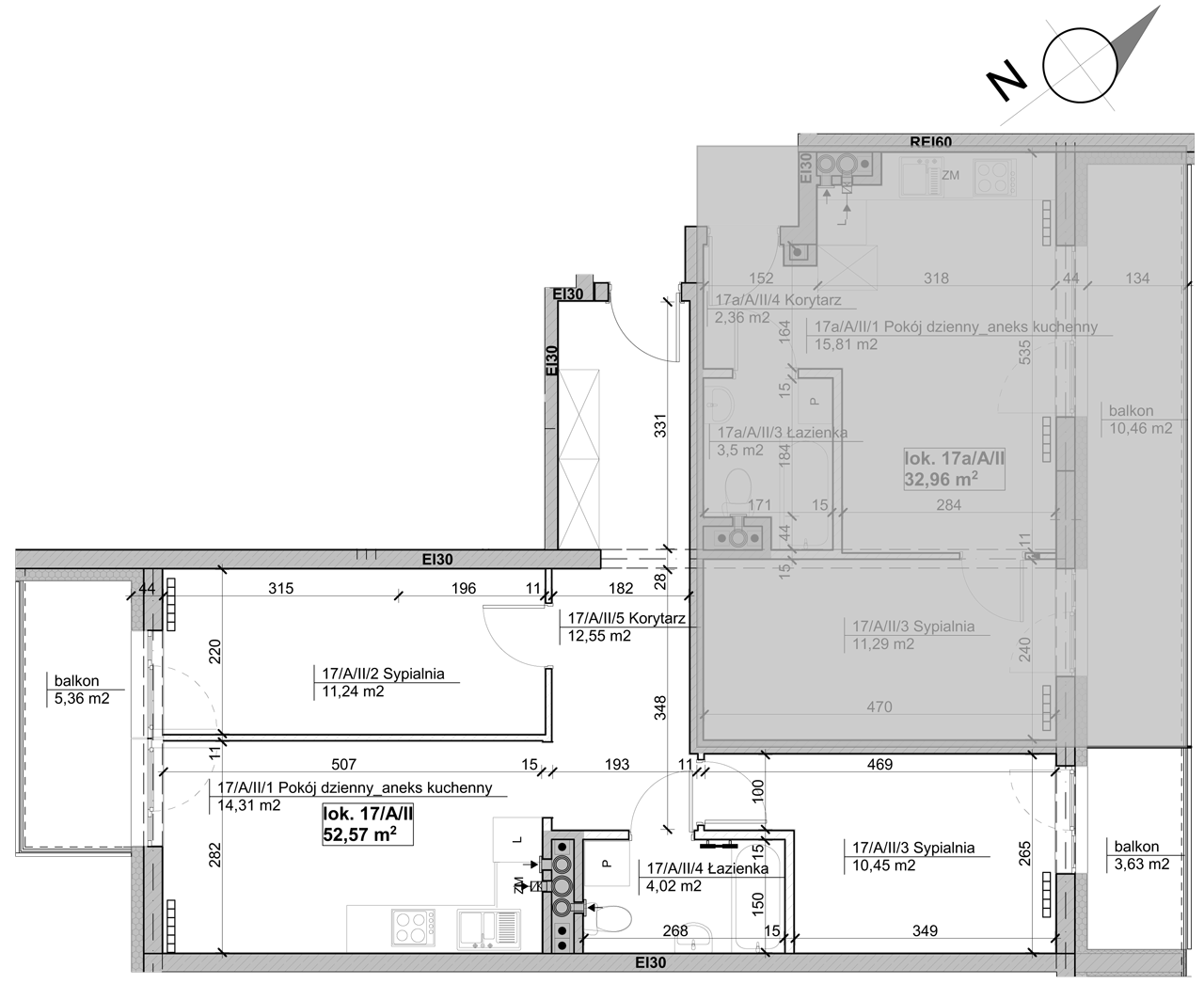
Projekt budowlany – mogą nastąpić niewielkie korekty w metrażach na etapie projektu wykonawczego| numer mieszkania |
ilość pokoi |
ekspozycja | metraż mieszkania |
metraż balkonu/tarasu |
uwagi |
|---|
Wygodne, nowoczesne mieszkania z balkonami
Wszystkie mieszkania na piętrach w etapie I mają balkony o zróżnicowanym metrażu, które dają dodatkowe możliwości wykorzystania przestrzeni mieszkalnej. Większe z tych mieszkań to dobre rozwiązania dla rodzin z dziecmi - najmłodsi zyskują swój własny kącik zabaw na powietrzu, a dorosli - miejsce wypoczynku i relaksu.
Mniejsze mieszkania, o metrażu 40-50 m2 są idealnym rozwiązaniem dla par lub singli, a także dla osób, które rozpatrują kupno mieszkania pod wynajem.
Mieszkania z ekspozycją na dwie strony
W I etapie osiedla mieszkaniowego Bielnik uwagę zwracają lokale z ekspozycją na dwie, przeciwległe strony swiata (M12, M17, M40 i M44). W tych mieszkaniach salon z wyjsciem na balkon położony jest po bardziej nasłonecznionej stronie, a sypialnie mają okna na stronę chłodniejszą.
Mieszkania z dwoma balkonami
Mieszkania M17 i M40 dysponują dwoma balkonami, co daje możliwosc relaksu na powietrzu po nasłonecznionej stronie lub w cieniu.




